


Development Land in Brenchley Road for Sale - £250,000
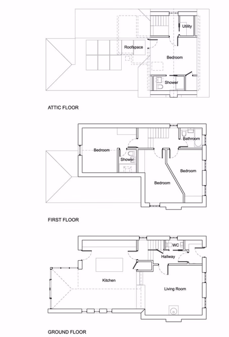
RARELY AVAILABLE - BUILDING PLOT WITH PLANNING PERMISSION! Barnes Kingsnorth Estate Agents are delighted to present an opportunity to purchase a parcel of land with planning permission granted for a 4 bedroom, detached home on the outskirts of MATFIELD village. Set over three floors, this goo...
Development Land in Brenchley Road for Sale - £250,000
Description
RARELY AVAILABLE - BUILDING PLOT WITH PLANNING PERMISSION! Barnes Kingsnorth Estate Agents are delighted to present an opportunity to purchase a parcel of land with planning permission granted for a 4 bedroom, detached home on the outskirts of MATFIELD village. Set over three floors, this goo...
Contact Agent
Smart Picks — Professionals Relevant to This Land
Based on this property's key features, here are the specialists you may want to consult as part of your due diligence: land agents, rural solicitors, planning consultants and land consultants.

Land Agents
Essential for navigating the land market, finding buyers, and securing the best price.

Rural Solicitors
Significant investment (£250K+) requires legal expertise for conveyancing, title checks, and transaction security.

Planning Consultants
Planning-sensitive site needs expert guidance for applications and development strategy.

Land Consultants
Multiple parcels or complex land structure requires expert analysis for optimal development strategy.
Location
Brenchley Road